Phase 2 Stage 1 Works
Project Description
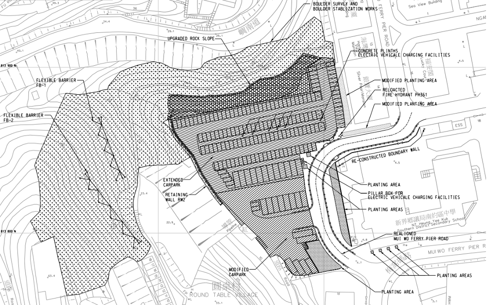
The proposed improvement works at Mui Wo, Phase 2 Stage 1 include the realignment of a section of Mui Wo Ferry Pier Road and extension of existing car park at the western side of ex-New Territories Heung Yee Kuk Southern District Secondary School (Ex-SDSS). An alternative route was provided for car park users to commuting between the car park and the town centre. In addition, the car parking spaces were increased from around 70 to 188 upon completion of the works.
Brief Description of Project Scope
The Phase 2 Stage 1 Works include:
- realignment of a section of Mui Wo Ferry Pier Road and extension of existing car parking area; and
-
ancillary works including slope works, signage, landscaping, drainage and utility works.
Current Project Progress
Phase 2 Stage 1
Construction works commenced in July 2016 and completed in March 2019.
-
Completed Works
- Flexible Barrier System Installation and Boulder Stabilization Works at Slope near Round Table Village
- Construction of Retaining Wall next to the Proposed Extension of Carpark
- Construction of boundary wall at Ex-SDSS
- Construction of Extended Car Park
- Geotechnical works
- Realignment of a section of Mui Wo Ferry Pier Road
- Modification of existing car park








